1-кімнатна квартира в Перлині Проскурова 2! 🌟 (№ 213-043-779)

Ціна: 35 400 $
Характеристики
Ціна: | 35 400 $ |
---|---|
№ об'єкта: | 213-043-779 |
Кімнат: | 1 розд |
Поверх: | 8 / 10 ліфт |
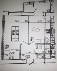
Площа: | 46 / 15 / 17 м2 |
Санвузол: | 1 сумісний |
Балкон: | лоджія |
Тип Обєкта: | НБ-здана |
Стан обєкту: | Стан від будівельників |
Іпотека: | - |
Державні програми.: | - |
Додатково: | новобудова |
Адреса: Хмельницька, Хмельницький, Ракове, Довженка, 4/1
Ця сучасна квартира розташована на 8-му поверсі 10-поверхового будинку в ЖК Перлина Проскурова 2. Загальна площа складає 46.8 м², з житловою площею 15.7 м² та просторою кухнею площею 17.2 м².
🔑 Основні характеристики:
Індивідуальне газове опалення: Двоконтурний котел забезпечує вам комфортну температуру в будь-яку пору року та економію на комунальних платежах.
Гардеробна кімната: З кімнати ви потрапляєте в гардеробну, що дозволяє зручно організувати простір і зберігати речі.
Панорамні вікна: Вони забезпечують максимальне природне освітлення та чудовий вид на навколишню природу, створюючи затишну атмосферу в квартирі.
Лоджія: Додатковий простір для відпочинку або вирощування рослин.
🌟 Стан квартири:
Після будівельників: У квартирі зроблена розводка електрики, штукатурка стін, встановлені гарні вхідні двері. Ви зможете втілити свої дизайнерські ідеї без зайвих витрат на попередні ремонти.
Суміжний санвузол.
Встановлені всі лічильники.
📍 Додаткові можливості:
На поверсі дзеркально розташована ще одна така ж квартира, стіна не є несучою, що відкриває можливість для об'єднання в одну велику квартиру, створюючи простір для великої родини або для інвестицій.
📞 Телефонуйте для отримання додаткової інформації та організації перегляду.