Світла та тепла 3-кімнатна квартира в ЖК Дім в Гречанах! (№ 213-135-327)

Ціна: 56 900 $
Характеристики
Ціна: | 56 900 $ |
---|---|
№ об'єкта: | 213-135-327 |
Кімнат: | 3 розд |
Поверх: | 5 / 10 ліфт |
Площа: | 84 / - / 14 м2 |
Санвузол: | 1 роздільний |
Балкон: | лоджія |
Тип Обєкта: | НБ-здана |
Стан обєкту: | Стан від будівельників |
Іпотека: | - |
Державні програми.: | - |
Додатково: | новобудова |
Адреса: Хмельницька, Хмельницький, Гречани, Романа Шухевича
📍 Розташування: район Гречани, ЖК Дім
🏢 Поверх: 5 з 10
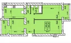
🏏 Загальна площа: 84 м² (кухня: 14 м²)
Ця квартира площею 84 м² — чудовий вибір для тих, хто цінує комфорт та якість. Розташована на 5-му поверсі цегляного будинку, вона забезпечує відмінну теплоізоляцію та затишок.
Основні характеристики:
- Якісна новобудова: ЖК Дім — це сучасний комплекс, який був зданий, але ще діє переуступка. Це дає можливість стати власником квартири за вигідними умовами.
- Двостороннє планування: Квартира має внутрішнє планування, що забезпечує природне освітлення з обох сторін, роблячи її ще більш затишною.
- Індивідуальне опалення: Квартира обладнана індивідуальним газовим опаленням та двоконтурним котлом, що дозволяє регулювати температуру та економити на комунальних витратах.
Інфраструктура:
- Зручне розташування: Квартира розташована навпроти ресторану 'Курінь', а також поблизу великої кількості комерційних магазинів. Це забезпечує комфортне життя з усіма необхідними послугами в кроковій доступності.
- Комфортне проживання: У ЖК є все необхідне для комфортного життя, що робить його ідеальним вибором для сімей або молодих людей, які шукають затишок і зручність.
📞 Телефонуйте вже сьогодні, щоб дізнатися більше та організувати перегляд! Ця квартира варта вашої уваги!