2-кімнатна квартира в ЖК Майборський! (№ 213-143-731)

Ціна: 33 000 $
Характеристики
| Ціна: | 33 000 $ |
|---|---|
| № об'єкта: | 213-143-731 |
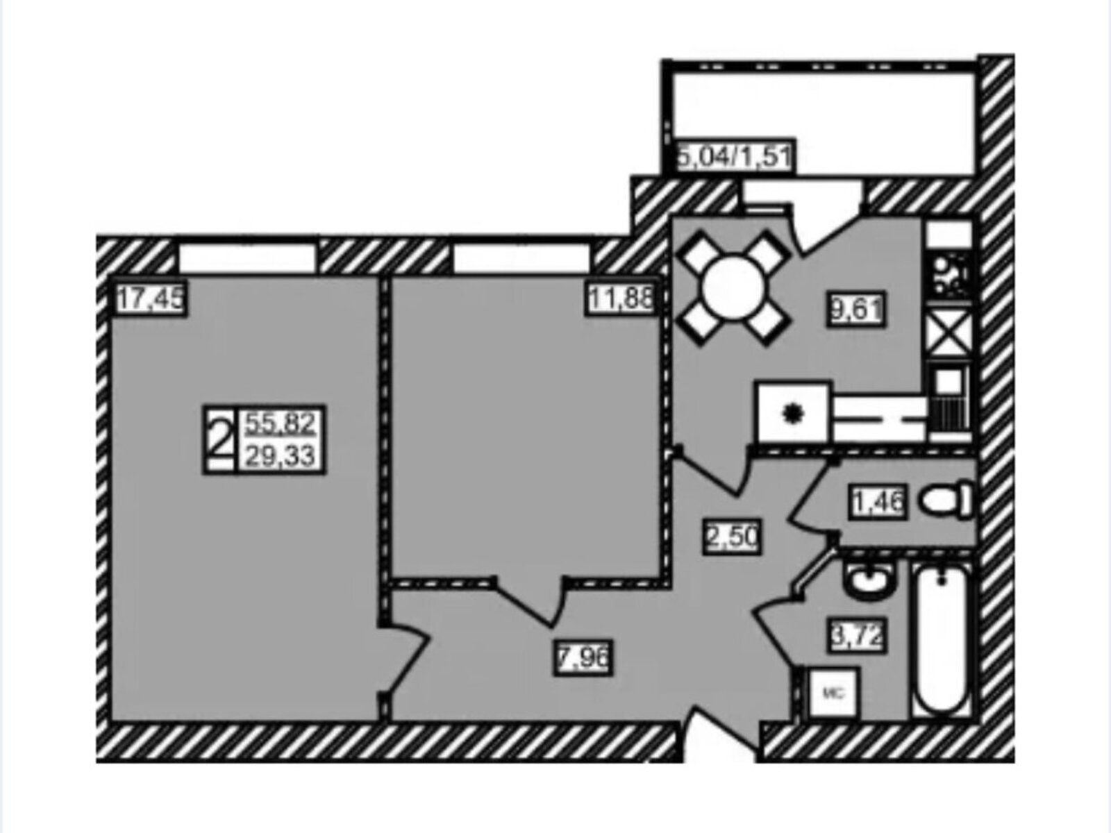
| Кімнат: | 2 розд |
| Поверх: | 6 / 9 ліфт |
| Площа: | 57 / 57 / - м2 |
| Санвузол: | роздільний |
| Тип Обєкта: | НБ-не здана |
| Стан обєкту: | Стан від будівельників |
| Іпотека: | - |
| Державні програми.: | - |
| Додатково: | новобудова |
Адреса: Хмельницька, Хмельницький, Ракове, Чорновола В'ячеслава, 182А
Продається 2-кімнатна квартира в ЖК Майборський!
🏢 Основні характеристики:
Кількість кімнат: 2
Поверх: 6 з 9
Загальна площа: 57 м²
Розташування: район Раково
🔨 Стан: Будинок на етапі будівництва
📞 Телефонуйте для деталей!







