🏢 1-кімнатна квартира в ЖК 'Агора-7', Озерна (№ 213-175-752)

Ціна: 33 000 $
Характеристики
Ціна: | 33 000 $ |
---|---|
№ об'єкта: | 213-175-752 |
Кімнат: | 1 |
Поверх: | 4 / 9 ліфт |
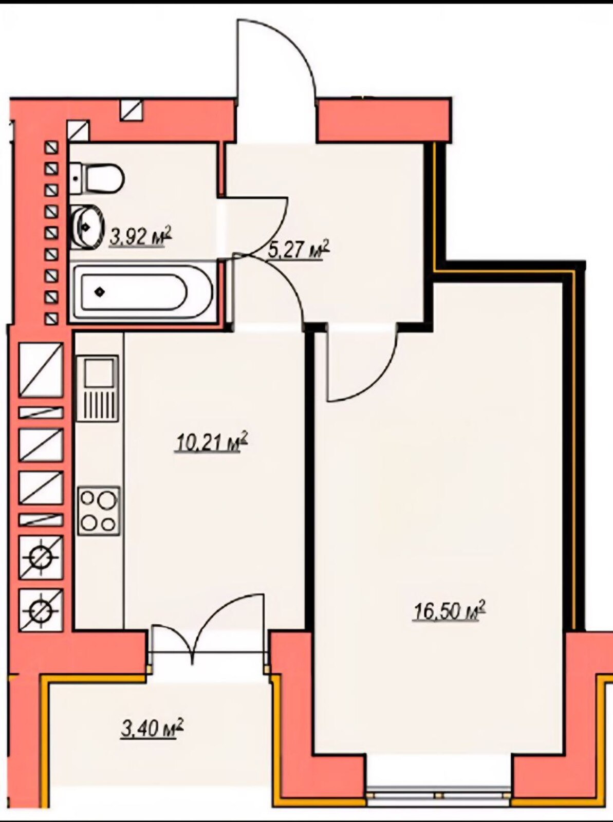
Площа: | 39 / - / - м2 |
Тип Обєкта: | НБ-не здана |
Стан обєкту: | Стан від будівельників |
Іпотека: | - |
Державні програми.: | - |
Додатково: | новобудова |
Адреса: Хмельницька, Хмельницький, Озерна, Озерна, 17
🏢 1-кімнатна квартира в ЖК 'Агора-7', Озерна
📍 Район Озерна | 4 поверх | Некутова
Продається 1-кімнатна квартира в новому будинку ЖК 'Агора-7'.
Будинок ще не зданий, чудова можливість інвестувати на ранньому етапі!
📐 Площа: 39 м²
🏢 Поверх: 4
🌤 Некутова — тиха й тепла
✅ Перспективний район з розвиненою інфраструктурою
✅ У зручному житловому комплексі з продуманим плануванням
📞 Телефонуйте для деталей — вигідна інвестиція чекає на вас!