✨ УНІКАЛЬНЕ ПЛАНУВАННЯ В ЖК «ПРИОЗЕРНИЙ»! 2-КІМНАТНА ЗА ЦІНОЮ ОДНОКІМНАТНОЇ! ✨ (№ 213-253-368)
Ціна: 46 500 $

Адреса: Озерна, Хмельницький, Хмельницька, Виставка
Характеристики
| Ціна: | 46 500 $ |
|---|---|
| № об'єкта: | 213-253-368 |
| Кімнат: | 2 розд |
| Поверх: | 6 / 10 ліфт |
| Площа: | 59 / - / - м2 |
| Санвузол: | сумісний |
| Тип Обєкта: | НБ-не здана |
| Стан обєкту: | Стан від будівельників |
| Іпотека: | - |
| Державні програми.: | - |
| Додатково: | новобудова |
Опис
✨ УНІКАЛЬНЕ ПЛАНУВАННЯ В ЖК «ПРИОЗЕРНИЙ»! 2-КІМНАТНА ЗА ЦІНОЮ ОДНОКІМНАТНОЇ! ✨
Шукаєте простуре житло з гарним виглядом у престижному районі? Пропонується квартира в сучасному ЖК «Приозерний» на Виставці. Завдяки продуманому проєкту, ви отримуєте повноцінне двокімнатне житло за ціною однокімнатної квартири! У 2025 році це одна з найвигідніших пропозицій у зданому будинку.
Чому ця квартира — знахідка для покупця:
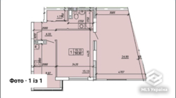
📐 Раціональне та вдале планування:
Загальна площа — 58,9 м².
Хоча за проєктом це 1-кімнатна, квартира фактично має дві окремі кімнати, функціональну кухню, санвузол та власну гардеробну.
Великі панорамні вікна в одній із кімнат наповнюють простір світлом та відкривають гарний краєвид.
🏢 Сучасний та комфортний будинок:
Будинок на етапі здачі в експлуатацію — ви зможете розпочати ремонт зовсім скоро!
Встановлено два ліфти (пасажирський та вантажний), що забезпечує швидке пересування навіть у години пік.
Комфортний 6-й поверх — золота середина для сучасного містянина.
📍 Локація — район Виставка:
Один із найкомфортніших районів Хмельницького. Поруч озеро, парк, зони відпочинку, супермаркети та зручна транспортна розв'язка.
💰 Вигідні умови купівлі:
Діє переуступка — це можливість оформити право власності на першого власника та зекономити на податках!
Це ідеальний варіант як для власного сімейного життя, так і для вигідної інвестиції!
📞 Не зволікайте! Телефонуйте вже зараз, щоб дізнатися деталі та домовитися про перегляд!
#ЖКПриозерний #ВиставкаХмельницький #ПродажКвартир #Новобудова2025 #Переуступка #2кімнатна #Гардеробна #НерухомістьХмельницький #КвартираБіляОзера












